Vinkenberg 11 - Honders Alting

Bekijk 49 beelden

Vinkenberg 11

Vraagprijs
€ 950.000

Aan de Vinkenberg in de buurtschap Vinkenberg, ten zuiden van het dorp Moergestel, staat deze enorme woonboerderij uit 1920 die in de periode 2005 tot 2008 is verbouwd. Met een inhoud van ruim 1920 m³ is dit een woonboerderij van formaat, met een grote bar/feestruimte en vele ruimtes om naar eigen wens in te vullen. Het perceel van 4790 m² en de twee grote bijgebouwen van totaal ca. 566 m² maken het hobbymatig houden van paarden, kleinvee of dieren mogelijk.

Deze bijzondere woonboerderij met grote bijgebouwen staat aan de zuidkant van de snelweg A58, op kort afstand van Moergestel. Zo zijn de supermarkt, basisschool, sportclub en andere voorzieningen binnen enkele autominuten, en met de fiets, te bereiken. Landgoed Gorp en Roovert en de Oisterwijkse bossen en vennen zorgen voor prachtige wandel- en fietsroutes. Via de snelweg A58 zijn Tilburg en Eindhoven goed bereikbaar.

INDELING

BEGANE GROND
Aan de voorzijde, tussen de ramen met groene raamluiken, is de entree van deze zeer ruime woonboerderij uit 1920. Boven de voordeur ziet u een prachtige, witte levensboom zoals vroeger veel in boerderijen en herenhuizen werd geplaatst. Vanuit de lange hal zijn de woonkamer, eetkeuken, toiletruimte, bijkeuken, en slaapkamer en badkamer te bereiken.
De ruime woonkamer en eetkeuken bevinden zich aan de linkerzijde van de woonboerderij. Door de grote ramen met roedeverdeling van veel licht naar binnen en de parketvloer vormt een fraaie combinatie met de schuifdeuren, voorzien van kleurrijk glas in lood. Voor een diner met vrienden of familie er een fraaie eetkamer aan de achterzijde, met openslaande deuren naar het terras.
In de keuken staat een royale keukenopstelling met een granieten aanrechtblad en alle benodigde inbouwapparatuur. In de bijkeuken, aan de overzijde van de hal, is ruimte voor de wasmachine, droger en een vriezer.
Gelijkvloers wonen is mogelijk dankzij de slaapkamer en badkamer op de begane grond. Nu is de slaapkamer ingericht met een eenpersoonsbed, maar ook voor een tweepersoonsbed is er genoeg ruimte. De naastgelegen badkamer is ingedeeld met een hoekbad, aparte douche en een wastafelmeubel.
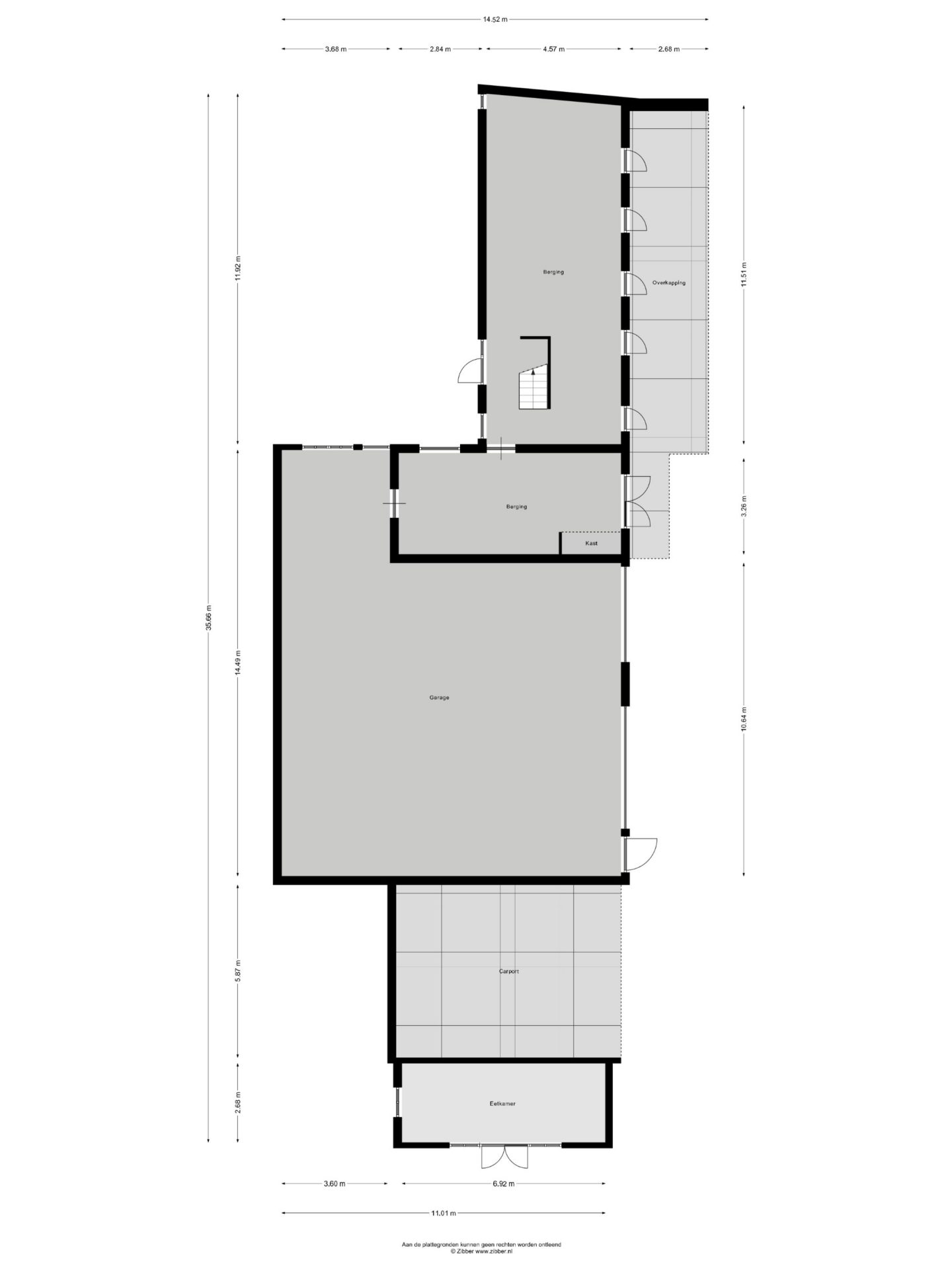
Het rechterdeel van de woonboerderij, met een oppervlakte van ca. 200 m², is voor diverse doeleinden geschikt. Aan de voorzijde zijn de garage en een tweede woonkamer met open keuken, wat een invulling als gastenverblijf mogelijk maakt. De grootste ruimte is een echte bar/feestzaal, met meerdere openslaande deuren naar de tuin. Ook voorzieningen als een toiletruimte, meerdere bergingen en vaste kasten zijn in ruime mate aanwezig.

EERSTE VERDIEPING
Achter een van de paneeldeuren in de hal is de trap naar de eerste verdieping. De eerste ruimte is, dankzij het formaat, veel meer dan een overloop. Een invulling als werk-/studeerruimte, voor een fitness aan huis, als atelier of gameroom is goed mogelijk.
Vanaf de overloop zijn twee slaapkamers te bereiken, thans ingericht als atelier/hobbyruimte en tweepersoons logeerkamer. Beide slaapkamers zijn voorzien van een wastafel en een berging in de schuinte van het dak.
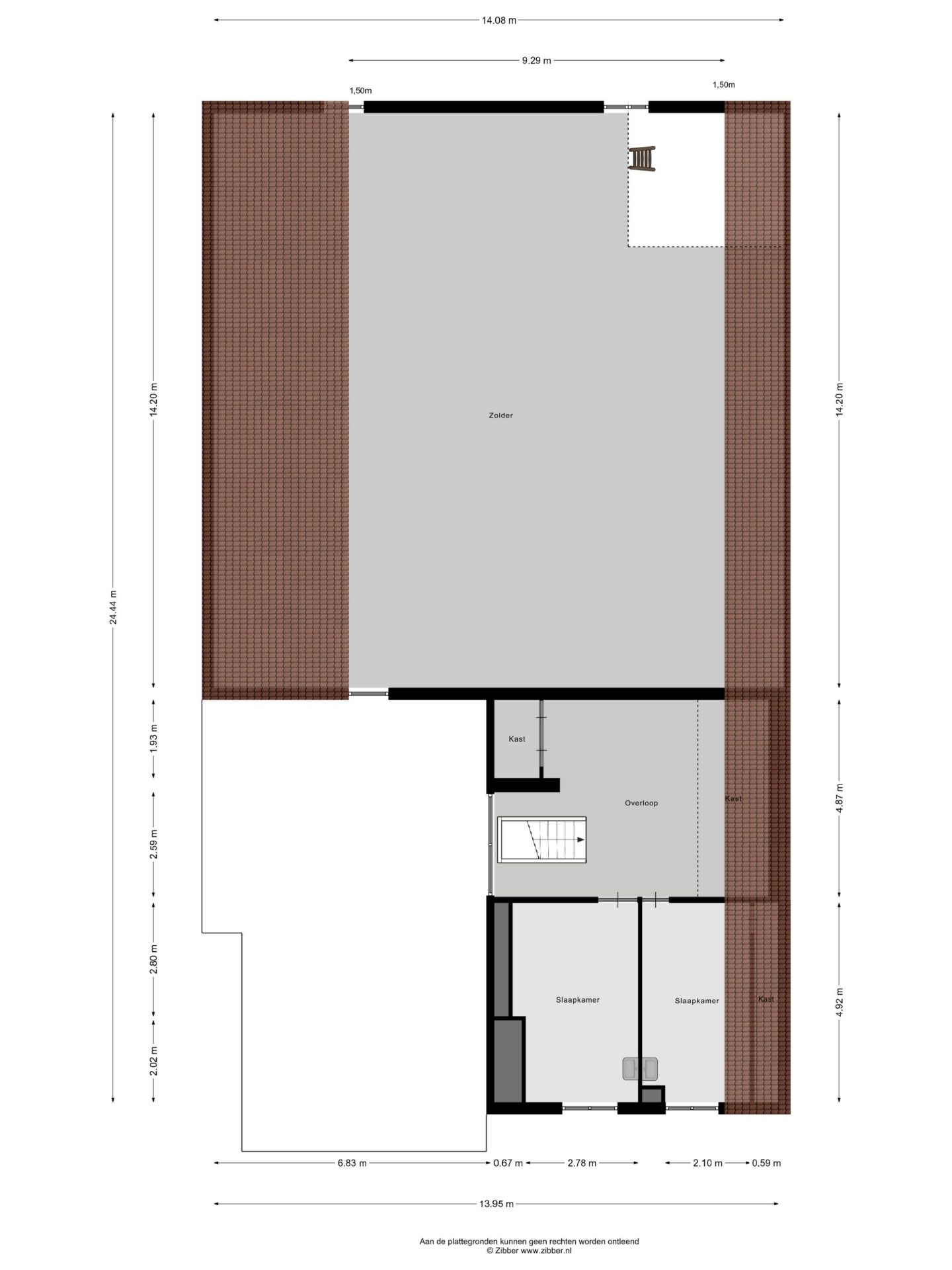
Boven het rechterdeel van de woonboerderij is een grote bergzolder van ca. 130 m², die vraagt om een nieuwe invulling. Laat je creativiteit de vrije loop, want aan ruimte is geen gebrek.

ZOLDER
Boven het woongedeelte is een royale zolderruimte, te bereiken met een vaste trap. Boven een klein deel van de eerdergenoemde bergzolder is een vliering gerealiseerd.

BIJGEBOUWEN
Aan de achterzijde van de woonboerderijen staan twee grote bijgebouwen van ca. 221 m² (excl. zolder) en 247.5 m². Het eerste bijgebouw biedt onder andere ruimte aan een tuinkamer, carport, een grote garage, berging en de stallen/dierenverblijven. Aan de overzijde van het verharde terrein staat het tweede bijgebouw, wat vroeger ook als stal is gebruikt. Er zijn twee grote, multifunctionele ruimtes en een toiletruimte in dit bijgebouw.

BUITEN
Aan de zuidkant van de woonboerderij is een geheel omheinde dierenweide met een dubbele poort aan de voorzijde. De tuin met gazon en halfhoge haag bevindt zich aan de noordzijde, bij de woonkamer en eetkeuken. Aan de achterzijde zorgt een groot, verhard terrein voor een goede toegankelijkheid van de bijgebouwen. Middels een recht van overpad is dit terrein vanaf de openbare weg te bereiken.

BIJZONDERHEDEN
– Bestemming ‘wonen’ met aan-huis-gebonden beroepen, kleinschalige bedrijfsmatige activiteiten, hobbymatige paardrijactiviteiten en hobbymatig houden van vee;
– Koper dient zijn gewenste invulling en toepassing zelf te toetsen bij de gemeente Oisterwijk;
– Inhoud woonboerderij ca. 1921 m³ (bruto vloeroppervlakte ca. 650 m²);
– Twee bijgebouwen van totaal ca. 566 m²;
– Perceel 4790 m²;
– De daken van de bijgebouwen zijn asbestvrij en deels voorzien van isolatie;
– Houten kozijnen met HR-glas (woonboerderij);
– Verwarming en warm water via twee HR-ketels;
– Verbouwd in eigen beheer (periode 2005-2008);
– Energielabel D

Details

Status
Verkocht
Bouwjaar
1920
Woonoppervlakte
342
Perceeloppervlakte
4790
Inhoud
1921
Aantal kamers
9
Aantal slaapkamers
3
Aantal badkamers
1

Locatie